![]() |
| 9 Marla House 3D Front Elevation Free Download |
![]() |
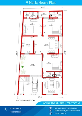
| 9 Marla House Plan |
9 Marla (2448.00Sft) house plan. The house plan includes 3 bedrooms as per the client's requirements including attached dressings and bathrooms, lounge, kitchen, car porch, stairs, drawing room, and spacious lawn.
![]() |
| 9 Marla House 3D Front Elevation |
Under construction at Aslam Colony Attock City.
![]() |
| 9 Marla House Under Construction |
Under construction at Aslam Colony Attock City.
tags:
9 marla house design
9 marla house plan
9 marla house naksha
9 marla in square feet
house maps 9 marla in pakistan
9 marla house front elevation
9 marla house for sale in lahore
10 marla house map 3d
9 marla house design
9 marla house naksha
house maps 9 marla in pakistan
9 marla house design in pakistan
9 marla in square feet
10 marla house design
7 marla house plan
9 marla house for sale in lahore
"We Offer Our Services"
Architectural Drawings, Structure Drawings, Town Planning, Front Elevation, Interior Designing, and Building Contractor.
For more information, you can visit our Office at Near Masque Ahle-Hadith Naveed Plaza First Floor Room No. 5.
Contact Number: +92312-5999324
+92309-5952439
![]() |
| Ideal Architect |
![]() |
| Ideal Architect |
Email address: Idealarchitect19@gmail.com
WhatsApp Us: +92312-5999324
Facebook Page: www.facebook.com/idealarchitect19






